売買 > 検索 【売戸建】中古戸建

(間取)(外観)
物件の詳細を見る
物件について問い合わせる
価格
5,680万円
中古戸建
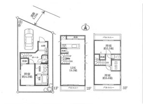
間取
2SLDK
所在地
東京都渋谷区 本町1
交通
京王線初台駅 徒歩7分
築年月
2000/10
構造
木造
面積
69.4m² 土地 44.07m²
階数
地上 3階
物件番号
/sc_shibuya/nc_87916603/
4階建の3LDK(ルーフテラス付)駐車場付きの戸建です! 所有権・築17年の鉄骨造・前面道路約4.5m! ルーフテラスでのんびり快適な日々をお過ごし頂けます! 2駅2路線利用可能! 千代田線代々木公園駅徒歩7分! 小田急線代々木八幡駅徒歩7分 オーケーストア初台店まで約200mで買物便利! 空室のため、即入居可能です。まずは、ご見学をお待ちしております!!
(間取)(外観)
物件の詳細を見る
物件について問い合わせる
価格
6,280万円
中古戸建
間取
3LDK
所在地
東京都渋谷区 元代々木町
交通
東京メトロ千代田線代々木公園駅 徒歩7分
築年月
2000/02
構造
面積
82.67m² 土地 43.97m²
階数
地上 4階
物件番号
/sc_shibuya/nc_87901008/
古くから【徳川山】とも呼ばれ、名士に愛された街、渋谷【大山町】。知る人ぞ知る邸宅街です。高台に位置し眺望、風通しが良好な好立地物件です。 築2年のたいへん綺麗な注文住宅です。現オーナーがこだわって設計された間取りは動線や使い勝手に長けたレイアウトとなっております。また、近くには【代々木大山公園】や【玉川上水緑道】等の緑溢れる住環境も魅力の邸宅街です。前面道路も約5m強ございますので、お車もスムーズに駐車可能です。是非、ご覧にお越し下さいませ。
(間取)(外観)
物件の詳細を見る
物件について問い合わせる
価格
1億600万円
中古戸建
間取
3LDK
所在地
東京都渋谷区 大山町
交通
東京メトロ千代田線代々木上原駅 徒歩7分
築年月
2014/04
構造
面積
93.15m² 土地 56.94m²
階数
地上 3階
物件番号
/sc_shibuya/nc_86567444/
平成24年築!築浅注文住宅、南側公道に面し陽当たり良好、約19帖のLDKに4.1帖のパントリー ◎恵比寿駅が徒歩圏内!南北線「白金台」駅も利用可能 ◎南側約7.2m公道に面し陽当たり良好 ◎約4.1帖のパントリー、小屋裏収納など豊富な収納スペース ◎駐車場には電気自動車専用コンセント200V設置
(間取)(外観)
物件の詳細を見る
物件について問い合わせる
価格
1億3,500万円
中古戸建
間取
2SLDK
所在地
東京都渋谷区 恵比寿3
交通
JR山手線恵比寿駅 徒歩9分
築年月
2012/07
構造
面積
103.08m² 土地 77.36m²
階数
地上 3階
物件番号
/sc_shibuya/nc_87858173/
【表参道駅】渋谷区神宮前4丁目築浅邸宅 ■表参道・外苑前・明治神宮前・原宿も徒歩圏。 ■大型4LDKでゆとりの室内空間となっております。 ■三菱地所ホーム施工の全館空調システム完備 ■ビルトインガレージはハイルーフ車も駐車可 ■なかなか手に入れる事の出来ない立地です。
(間取)(外観)
物件の詳細を見る
物件について問い合わせる
価格
2億3,800万円
中古戸建
間取
4SLDK
所在地
東京都渋谷区 神宮前4
交通
東京メトロ銀座線表参道駅 徒歩5分
築年月
2007/09
構造
面積
138.02m² 土地 87.7m²
階数
地上 3階
物件番号
/sc_shibuya/nc_87720007/

前のページにもどる